AMSTELWIJCK MIDDEN

DORDRECHT

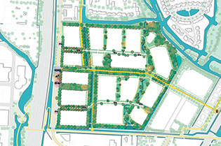
Bestaande bomen behouden

Op de locatie van Amstelwijck Midden ligt op dit moment een verlaten sportpark met een mooie volwassen boomstructuur. Het sportpark gaat weg, maar de bomen blijven. Het uitgangspunt is immers om zo veel mogelijk waardevolle boomstructuren te laten staan. Het stevige groene raamwerk vormt de basis voor de nieuwe lanen en hoven, die meteen volwassen bomen hebben.

 

Een integraal ontworpen groenblauwe hoofdstructuur

De inrichting van de openbare ruimte is ontworpen voor een optimale waterhuishouding, en om een biodiverse groenstructuur, langzame verkeer én de gezondheid te stimuleren. De integraal ontworpen autovrije hoofdstructuur van de wijk bestaat uit het historische assenkruis met twee nieuwe geknikte uiteinden, en een nieuwe ‘zijbeek’ van de Oostkil. Tezamen met de groene hofjes vormt dit één groot ‘Oostkilpark’ en zijn vrijwel alle woningen met hun voordeur aan het park gesitueerd. Daarnaast wordt de buurt ook duurzaam, stil en biodivers gemaakt. En niet alleen de woningen zijn energieneutraal, maar ook de openbare verlichting en installaties voor het watermanagement.

 

Parkeren uit het zicht + deelauto’s

De auto en het parkeren zijn geen onderdeel van de hoofdstructuur. Er wordt uit het zicht geparkeerd in de bouwblokken. Het ontwerp streeft ernaar om het autogebruik en -bezit zo veel mogelijk te verminderen. De drempel om te gaan fietsen wordt zo laag mogelijk gemaakt door de fietspaden direct voor de deur te leggen. En elke koper krijgt een abonnement op een elektrische deelauto bij de aanschaf van de woning, zodat de noodzaak van het bezit van een tweede auto verlaagd wordt.

OPDRACHTGEVER

Plegt-Vos

Roosdom-Tijhuis

WERKZAAMHEDEN

Winnend tenderontwerp

VO stedenbouwkundig plan

DO stedenbouwkundig plan

Beeldkwaliteitplan

Uitwerking deelfases

Begeleiding

PROGRAMMA

400 woningen

1/3 van het gebied groen

© 2026 created by Atelier Dutch