Putten RIMPELER

Ontspannen wonen tussen de bestaande houtwallen

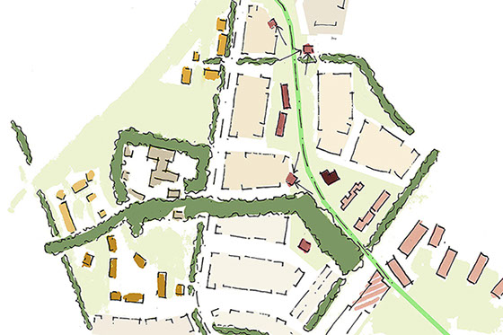
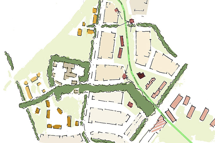
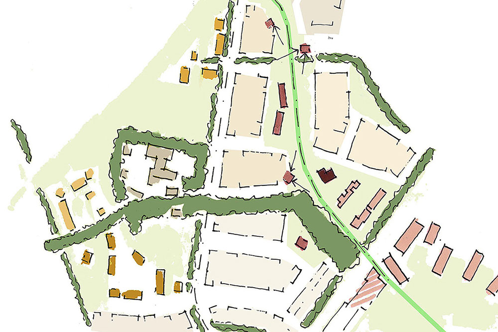
De essentie van het stedenbouwkundig plan voor Rimpeler wordt gevormd door de aanwezige landschappelijke en cultuurhistorische raamwerk. Rit waamwerk wordt gevormd door bestaande houtwallen die bijna allemaal zijn worden behouden en de structuur bepalen van het plan . Het stedenbouwkundig plan heeft daardoor direct een groene kwaliteit. Deze ecologische kwaliteit komt ook terug in het landschappelijk ontwerp:  hierin is niet alleen voldoende ruimte is gereserveerd voor de bestaande houtwallen, maar ook voor veel nieuw groen en bomen in de openbare ruimte. Het is een stedenbouwkundig plan waarin wonen, groen, afwatering en ontsluiting logisch in elkaar vallen.

 

Het dorp, het park en het erf als groendorpse woonmillieu’s

Het plan bestaat uit  kleinschalige bouwvelden die verdeeld zijn in drie type milieus: het dorp, het park en het erf. De bouwvelden in ‘het dorp’ krijgen een informele sfeer met korte straten, alzijdige bouwblokken en veel groen.

Tussen de bouwvelden door loopt een centrale groenzone, ‘de groene ader’. Aan deze groene ader liggen gebouwen van het ‘park’ woonmilieu. Door de groenzone loopt een vrijliggend fietspad dat een nieuwe verbinding maakt tussen het centrum en het station. Langs de groene ader staan lage appartementengebouwen die meedoen in het groene landschap.

Aan de westzijde van de Rimpelerweg wordt aangesloten bij de typologie van het ‘boerenerf’. Samen met de bestaande boerderij vormen nieuwe kleine ‘boerenerven’ een overgangszone richting het naastgelegen gebied (Henslare). De woningen zijn allen gesitueerd aan een gezamenlijk erf dat wordt ingericht als ontmoetingsplek.

 

Groene straten met ‘Rimpelerstrook’ voor waterafvoer

In het inrichtingsplan  is de verharding tot een minimum beperkt. Door het maken van en halfverharde molgoot, de Rimpelerstrook, worden twéé vliegen in een klap geslagen. Het water kan hierdoor via het oppervlak worden afgevoerd en de rijbaan kan tot een minimumbreedte worden beperkt. Hierdoor ontstaat ruimte voor extra brede groenstroken en groenvakken en de ‘groene zweem’ die in de half-verharding ontstaat draag op zichzelf ook bij een groene uitstraling.

OPDRACHTGEVER

Gemeente Putten

WERKZAAMHEDEN

Stedenbouwkundig Plan

Beeldkwaliteitplan

Inrichting openbare ruimte

Ontwerp civiele kunstwerken

PROGRAMMA

340 woningen

© 2026 created by Atelier Dutch